The Problem
Marinas are based around sheltered mooring space, which is limited by geography. To allow more boat owners to be served, a new marina planned a storage building, high above potential flood levels. However, they needed a fast transfer of vessels from water onto land regardless of the tide height.
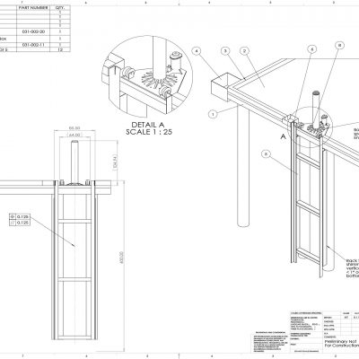
Our Approach
We performed the mechanical design for a bespoke rotating hydraulic lift to allow boat conveyance by pier-based forklifts. Our role spanned concept design to integrity analysis to manufacturing drawings. We also had a role in supervising manufacture and installation as well as leading the commissioning testing.
The Results
The lift is a key daily component for the marina’s operations, allowing dry storage boat owners quick access to and from the water.

